WILLKOMMEN BEI
halbwild
Das voll kompatible Minimalhaus für den regenerativen Siedlungsbau:
für Generationen gebaut, KI smart, modular erweiterbar und ein Leben lang mobil.
Wir freuen uns auf Sie und denken Sie daran, es gibt nichts Gutes außer man tut es…
Wer ist halbwild und was machen wir
Die halbwild GmbH ist ein Start-up und wurde Anfang 2023 von Hendrik Steffen und Lennart Fraedrich gegründet. Wir befinden uns aktuell in der Prototypenbau und Go-to-Market Phase.
Das von uns entwickelte halbwild Minimalhaus für regenerative Siedlungen werden wir gemeinsam mit Produktionspartner und Zulieferern in unserer Manufaktur als Premiumprodukt deutscher Handwerkskunst bauen.
Mit unserem Minimalhaus denken wir regenerative Siedlungskonzepte neu: integriert, KI-gesteuert, regenerativ versorgt, bewohnerfreundlich gestaltet, gemeinschaftlich organisiert und immer mobil.
Das Ziel von halbwild ist es, unseren Kunden ein kostengünstigeres, gesünderes, nachhaltiges und insgesamt zufriedeneres Leben zu ermöglichen.
Unsere Vision
Unsere Vision ist es, regenerative Siedlungen zu erschaffen, die auf unserem halbwild Minimalhaus basieren. Diese Siedlungen bieten nachhaltige und mobile Wohnlösungen und fördern ein Leben im Einklang mit Natur und Gemeinschaft.
Unsere regenerativen Siedlungen sind ausgestattet mit erneuerbarer Energie, autarken Wasserversorgungssystemen und Permakulturen zur Produktion von Nahrungsmitteln. Wir möchten damit Wohnnebenkosten reduzieren, Lebensmittelkosten senken und CO2-Emissionen minimieren.
Durch die Integration von Versorgungssystemen, dem halbwild Minimalhaus und der Kreislaufwirtschaft mit KI-Technologien ermöglichen wir eine regenerative Lebensweise.
Halbwild ist überzeugt, dass in jedem Menschen die Fähigkeit steckt, ein autarkes und nachhaltiges Leben zu führen, ohne die ökologische Vielfalt einzuschränken.
Unsere Siedlungsprojekte machen diesen Lebensstil wieder erfahrbar und legen den Grundstein für eine friedliche Zukunft unseres Planeten.
Unser innovatives
Produkt im Detail
Das halbwild Minimalhaus ist die Symbiose der aktuellen Tiny- und Mobilhaus Entwicklung und die ideale Lösung für den Siedlungsbau.
Diese Symbiose ist unser Alleinstellungsmerkmal:
Aus Aluminium & Holz konstruiert, widerstandsfähig für Generationen
Leicht zu transportieren, schnell aufzubauen und ein Leben lang mobil
Für jede Lebenssituation modular erweiterbar und individuell zu konzipieren
Mit energieeffizienter Dämmung, KFW 40 fähig und klimaneutral zu bewohnen
Mit allen Unterlagen zur Baugenehmigung, anpassbar für Auflagen
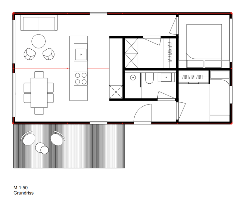
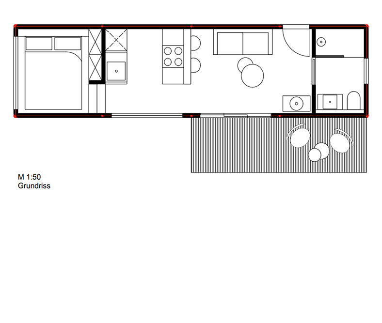
Das Basismodul
Aluminiumkonstruktion
Korrosionsfrei
Im Vergleich zu Stahl weniger Gewicht bei ähnlichen Festigkeitswerten
Individuelle Profile durch Strangpressverfahren
Recycling und rückbaufähig
strahlungsabweisend
Holz im Innenausbau
Maße (L x B x H)
Außenmaße: 9,69 x 2,50 x 3,2 m
Innenmaße: 9,39 x 2,20 x 2,8 m
Modularität
Effiziente Produktion durch Vorfertigung von Baugruppen
Identische Abmaße bei allen Seitenverkleidungen
Zulieferung von Kooperationspartner
Modulare Erweiterung und Anbau möglich
Sie haben Fragen?
So erreichen Sie uns!
Warum Aluminium
als Werkstoff?
Recycling statt Herstellung!
Individualität
Aluminium Strangpressprofile können an die eigenen spezifischen Anforderungen angepasst werden. Somit spart man Gewicht und auch Kosten.
Langlebigkeit
Aluminium Verkleidung
Innenverkleidung
Dämmebene mit Dampfsperre
Installationsebene mit zusätzlicher Dämmung
Dämmung und Lüftung
Erfüllung des GEG EEK 40
Energienachweiß für jedes Konzept
Nachhaltige Dämmstoffe
Integriertes Lüftungskonzept
Klimaneutrales Wohnen
Aluminium Verkleidung
Innenverkleidung
Dämmebene mit Dampfsperre
Installationsebene mit zusätzlicher Dämmung
Transport
Der Transport der Module
Vom Produktionsort zum Kunden erfolgt durch einen LKW mit Ladekran und Tieflader.
Auf dem Tieflader ist Platz für ein Modul.
Durch das Einhalten der gesetzlichen Vorgaben der StVZO in Bezug auf Abmaße und Gewicht wird kein Schwertransport benötigt.
Die Platzierung der Module
Abhängig von den örtlichen Gegebenheiten.
Vorzugsweise wird für das Aufstellen der festinstallierte Ladekran auf dem LKW genutzt, der das Modul auf die eigene Achse, ein Schraub-, Punkt-, oder Streifenfundament, setzt.
Bei schwer zu erreichenden Standorten, wird ein externer Kran LKW benötigt.
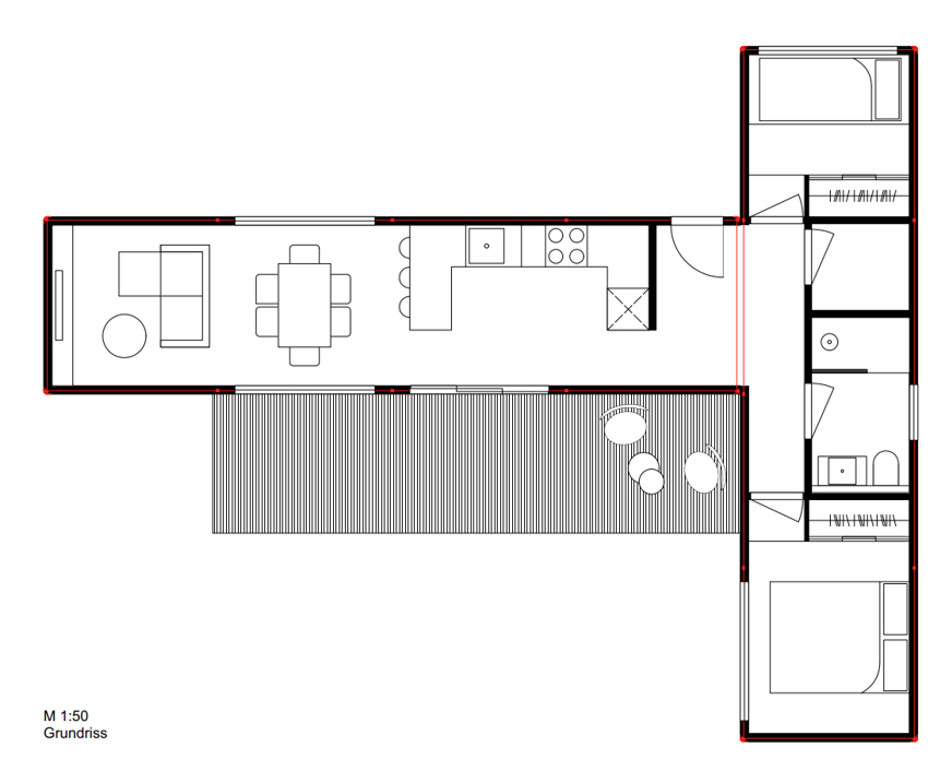
Zusammenstellung
mehrerer Module
Vergrößerung der Wohnfläche
Beliebige Zusammenstellung mehrerer Module
bis zu 3 Etagen stapelbar
Keine konstruktive Änderung des Grundgerüstes notwendig
Dichtungskonzept an der Trennstelle
Eigens entwickelte Dichtungsprofile
Mehrere Dichtungen sorgen für eine wasserdichte und langlebige Trennstelle
Verbindung
Module werden miteinander verschraubt (Exzenter Verschluss)
Rückbaubar
Nachträgliche Erweiterung durch zusätzliche Module möglich
Modulare Konzepte Ihrer Wahl
*Preis inkl. Küche, Bad, Bett, Einbauten, elektrischer Fußbodenheizung und elektrischem Warmwasser
Fokus regenerative Siedlungen
In Deutschland werden vermehrt Minimalhaus Siedlungen als Ferienort, aber auch für dauerhaftes Wohnen erschlossen.
Ziel ist es, solche Siedlungen zu entwickeln und mit unseren Minimalhäusern und Siedlungsinfrastruktur auszustatten…
Merkmale regenerativer Siedlungen:
Permakultur
Nachhaltige und produktive Ökosysteme durch Nutzung natürlicher Ressourcen, Förderung der Biodiversität, Integration ökologischer Landwirtschafts- und Gartenbautechniken.
Erneuerbare Energien
Solarenergie, Windkraft und Biomasse zur Deckung des Energiebedarfs sowie Integration von Energiespeichersystemen und Energieeffizienzdenken.
Kreislaufwirtschaft
Abfallminimierung, effiziente Ressourcennutzung durch Recycling- und Kompostierungssystemen, Nutzung lokaler Ressourcen und Wiederverwendung von Materialien.
Gemeinschaftsgestaltung
Gemeinschaftsfokussierung durch Gemeinschaftsgärten, gemeinschaftliche Räume und Aktivitäten, sozialen Zusammenhalt stärken und den Austausch von Wissen und Ressourcen ermöglichen.
Wasser- und Landmanagement
Nachhaltige Nutzung von Wasser durch Implementierung von Regenwassernutzungssystemen, Schaffung natürlicher Aufbereitungs- und Filtersysteme sowie Förderung nachhaltiger Landwirtschaftspraktiken.
Regeneratives Leben:
Ihre Vorteile
Das Leben in einer halbwild Siedlung ist nicht nur ökologisch sinnvoll, sondern auch ökonomisch vorteilhaft und sozial bereichernd. Es bietet Ihnen eine zukunftsorientierte Lebensweise, die sowohl ihre Bedürfnisse als auch die der Umwelt berücksichtigt:
Nachhaltigkeit und Umweltfreundlichkeit
- Nutzung erneuerbarer Energien reduziert den ökologischen Fußabdruck
- Kreislaufwirtschaft minimiert Abfall und schont Ressourcen
- Minimales Wohnen reduziert CO2-Emissionen
Kosteneffizienz
- Geringere Wohnnebenkosten durch regenerative Versorgungssysteme
- Reduzierte Lebensmittelkosten dank Permakultur und eigenem Anbau
Gesundheit und Wohlbefinden
- Mehr Lebensqualität durch ein gesundes Wohnumfeld
- Körperliche und geistige Gesundheit durch aktive und naturnahe Lebensweise
Gemeinschaft und Soziale
- Stärkung der Gemeinschaft durch gemeinsames Engagement und Arbeit
- Förderung sozialer Interaktionen und Unterstützung innerhalb der Siedlung
Flexibilität und Anpassungsfähigkeit
- Modularität der Häuser ermöglicht individuelle Anpassungen
- Mobilität der Häuser bietet Flexibilität bei Standortwechseln
Autarkie und Selbstversorgung
- Unabhängigkeit von externen Netzen durch autarke Energie- und Wassersysteme
- Eigenproduktion von Nahrungsmitteln fördert deren Qualität
Permakultur
halbwild Siedlungen kooperieren mit greenspot bei der Entwicklung von Permakulturen zur Gemüse- und Energieversorgung der Siedlungsbewohner.
Gemeinschaftsorganisation
Bei halbwild streben wir danach, durch entschleunigtes, authentisches und gemeinschaftliches Leben ein harmonisches Miteinander zu fördern. Unser Ziel ist es, Menschen zu unterstützen, ein konsumreduziertes, regeneratives Leben zu führen, das von Gemeinschaft, Natur, traditionellen Methoden und Achtsamkeit geprägt ist.
weiterlesen
Die positive Nutzung der KI-Agententechnologie unterstützt diese Gemeinschaftsorganisation. Gemeinsam wollen wir ein ganzheitliches System, gegenseitig vorteilhafter Beziehungen für uns Menschen schaffen. Mit KI wollen wir ein Kommunikationsdesign generieren, das den Bewohnern hilft und sie anleitet. Der Abgleich von Simulationen und realen Daten macht unsere Konzepte besser. Mit Hilfe zahlreicher Sensoren und der Siedlungssystemeinbindung, ist das halbwild Minimalhaus KI smart.
